2 Bedrooms Penthouse for sale in Benalmadena
Sale
€ 518.000
Description
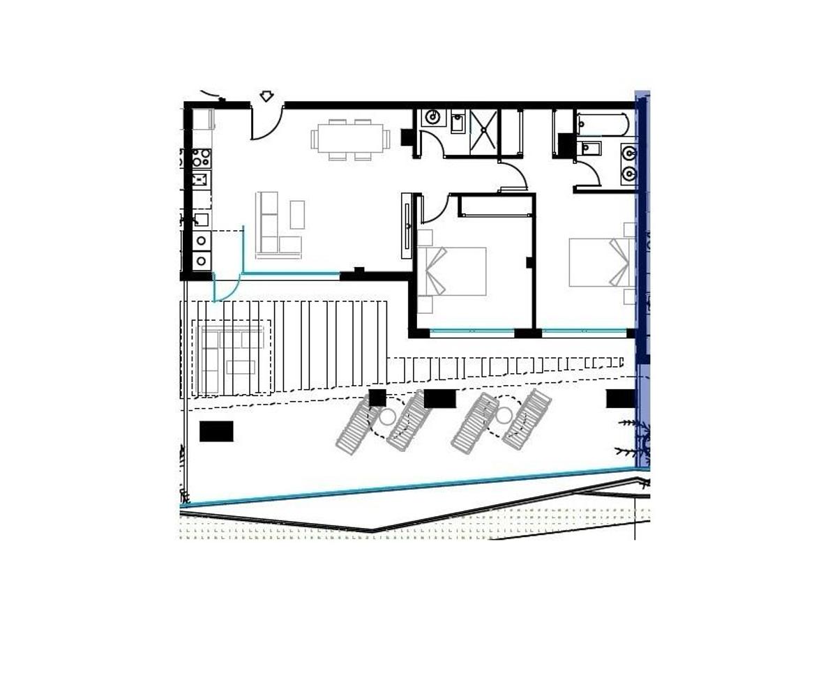
Sea View New Build Homes in Benalmadena, Costa del Sol Modern Homes With Panoramic Sea Views Discover an exclusive residential development of 32 new build homes in the Monte Alto area of Benalmadena. This boutique project offers 1, 2 and 3 bedroom properties including ground floor units with private gardens, spacious middle floor apartments with generous terraces, and impressive penthouses with large outdoor areas and pergolas. All homes enjoy panoramic sea views and spectacular views over the bay of Benalmadena. Exceptional Quality and Functional Design Designed to enhance your lifestyle, these homes combine modern style with comfort. South facing layouts and large terraces, averaging more than 20 m2, ensure exceptional natural light and outdoor living. Each property includes a fully equipped kitchen with appliances, ducted air conditioning, aerothermal hot water system, and parking space. Penthouse units include two parking spaces. Premium Community Facilities Enjoy beautifully landscaped gardens and an elegant infinity pool where you can relax while admiring stunning sea views. Stay active in the fully equipped gym overlooking the Mediterranean. Every detail has been planned to provide a peaceful and privileged residential experience. Prime Location in Benalmadena Located just 5 minutes on foot from Benalmadena Golf, the development sits in one of the most desirable residential areas of the Costa del Sol. Benalmadena offers a perfect mix of traditional Andalusian charm and modern coastal living, with more than 300 days of sunshine per year. Convenient Access to Services and Attractions Only 3 km from the beaches and coves of Benalmadena and perfectly connected to public transport, this location offers easy access to all essential services including shopping centers, schools, the regional hospital and three nearby golf courses. The famous Puerto Marina, one of the top leisure and nautical destinations in Europe, is only a short drive away. Distances to Key Points of Interest Malaga Airport 15 km Benalmadena Beach 3 km Benalmadena Golf 0.4 km Puerto Marina 6 km Malaga City Center 20 km Your Luxury Coastal Lifestyle Awaits Experience the perfect blend of tranquility, comfort and Mediterranean beauty in one of the most sought after areas of the Costa del Sol. Contact us today and make your dream home with sea views a reality.
Information
Features
- Elevator/Lift...
- Communal Pool...
- Gated...
- Terrace: 60 Msq....
- Parking - Space...
- Number of Parking Spaces...
- Beach: 3000 Meters...
- Near Golf / Golf Resort ...
- Views: Sea...
- Near Trees...
- Near Schools...
- Near Commercial Center...
- Near Bus Route...
- Location: Coastal...
- Urbanisation...
- Useable Build Space: 90 ...
- Gym...
- Double Bedrooms: 2...
SIMILAR PROPERTIES
-
2 2 104m² 0m²Exclusive New Residential in Nueva Andalucía, Marbella Contemporary Living in the Heart of Marbella This exclusive Turn Key residential complex in...€ 538.500Ref: N9175
-
2 2 105m² 0m²New Residential Development in Estepona – Modern Apartments in a Prime Location Exclusive New Build Apartments in Estepona Discover this new reside...€ 500.000Ref: N8764









