2 Bedrooms Villa for sale in Fuente Alamo
Sale
€ 279.900
Beschrijving
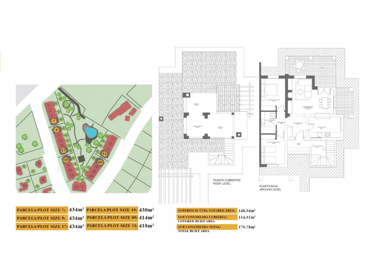
New Build Villas in Hacienda del Álamo Golf Resort, Murcia Modern Homes in an Exclusive Natural Setting Discover these fantastic new build villas in the prestigious Hacienda del Álamo Golf Resort, a gated community in the region of Murcia that combines tranquillity, security and a full range of services. Surrounded by nature and blessed with a privileged climate, this complex is ideal for those seeking a relaxed lifestyle without sacrificing comfort. 2 or 3-bedroom villas on one floor with private solarium The residential complex consists of 17 villas on plots starting at 300 m2. You can choose between homes with 2 or 3 bedrooms and 2 full bathrooms on one floor, as well as a terrace area with a 6×2.4 private pool and a private solarium on the roof. High-quality finishes and guaranteed comfort The homes are designed with high-quality materials and conceived to offer energy efficiency and well-being: Exterior carpentry with thermal break Hot water via aerothermal system Pre-installation of ducted air conditioning Private swimming pool Independent irrigation water installation with storage tank and individual pressure unit. Motorised vehicle access gate. Motorised blinds in bedrooms Reinforced entrance door A Resort with Full Services and Golf Course Hacienda del Álamo is one of the most complete complexes on the Costa Cálida. It features: 18-hole professional golf course Hotel with spa Supermarket Restaurants and bars Sports courts and green areas 24-hour security The development recreates the atmosphere of a traditional Mediterranean village, with quiet streets and careful design. Strategic Location Close to Everything Murcia International Airport (Corvera): 20 km Additional golf courses: less than 10 km Cartagena: 35 km Mar Menor beaches: 30 km Espacio Mediterráneo shopping centre: 28 km Port of Mazarrón: 40 km Live in Style on the Costa Cálida These villas represent an excellent opportunity to live or invest in one of the most promising areas of Murcia. Contact us now and discover your next home at Hacienda del Álamo Golf Resort.
Information
Features
- Private Pool...
- Garden...
- Gated...
- Terrace: 76 Msq....
- Solarium: Yes...
- Parking - Space...
- Number of Parking Spaces...
- Beach: 23000 Meters...
- Near Golf / Golf Resort ...
- Near Schools...
- Location: Urbanisation...
- Useable Build Space: 77 ...
- Air Conditioning: Pre-In...
- Storage / Trastero...
- Double Bedrooms: 2...
SIMILAR PROPERTIES
-
2 2 95m² 0m²NEW BUILD RESIDENTIAL IN EL RASO, GUARDAMAR DEL SEGURA New Build private residential complex consisting of 2 bedroom premium apartments and 2 or 3 bedroo...€ 279.000Ref: SP1300
-
2 2 66m² 0m²NEW BUILD RESIDENTIAL IN EL VERGEL New Build residential complex of 65 modern 2 bedrooms apartments and 2 and 3 bedrooms townhouses in El Vergel. Followi...€ 307.000Ref: N8027











