3 Bedrooms Apartment for sale in Estepona
Sale
€ 815.000
Beschrijving
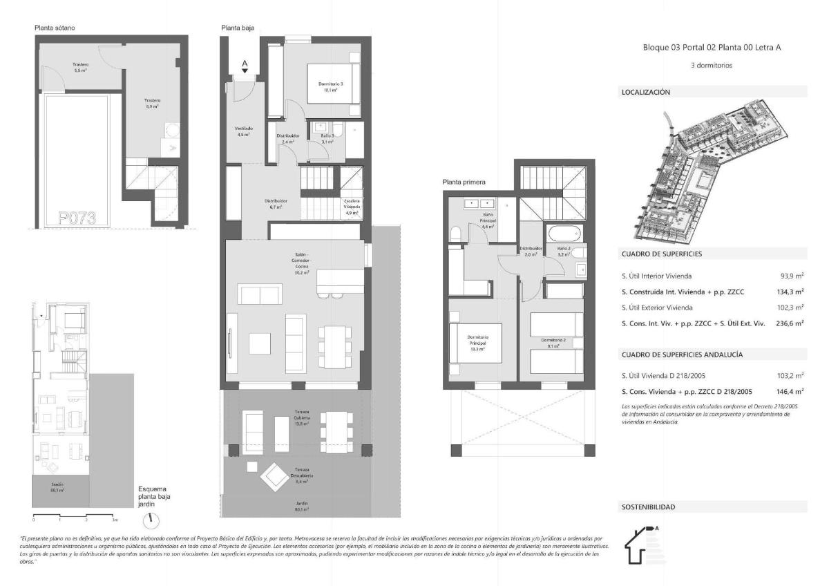
Luxury Living by the Sea: Exclusive New Construction in Estepona A Prime Location in Estepona This exclusive development of 25 luxury residences is located in one of Estepona’s most dynamic and sought-after areas. Situated just 400 meters from the serene beaches of Arroyo Vaquero, the property offers an ideal blend of natural beauty and modern convenience. Nestled in the western part of Estepona, near the peaceful neighborhood of Arroyo Enmedio, the location provides easy access to both the vibrant town center and the tranquility of the surrounding coastline. Estepona, known as the “Garden of the Costa del Sol,” is a Mediterranean gem. Its charming cobblestone streets, adorned with colorful flowers, and its vibrant marina reflect the town’s blend of tradition and contemporary allure. With over 20 kilometers of beaches, Estepona is a paradise for those seeking a luxurious and laid-back lifestyle. Exceptional Connectivity The development is strategically located to provide excellent connectivity to key points of interest: Estepona Town Center: 4 km (8-minute drive) Malaga Airport: 82 km (approximately 1 hour by car) Gibraltar Airport: 45 km (35-minute drive) Estepona Marina: 5 km (10-minute drive) Estepona Golf Course: 3 km (5-minute drive) Laguna Village Shopping Center: 7 km (12-minute drive) Unmatched Amenities The complex offers an exceptional range of facilities to enhance your lifestyle: Landscaped Gardens: Surrounding the development, the meticulously designed green spaces create an oasis of beauty and tranquility. These areas invite residents to relax, enjoy nature, or unwind with a book in hand. Central Pool Area: A large outdoor pool serves as the centerpiece, offering a refreshing escape during sunny days and a serene space for relaxation. Fully Equipped Gym: Conveniently located near the pool, the gym provides a modern space for fitness enthusiasts to maintain a healthy and active lifestyle. Elegance and Comfort in Every Detail The residences are designed to combine luxury and functionality. Large porcelain tile floors, expansive windows for abundant natural light, and spacious layouts ensure comfort and sophistication. Each home boasts terraces or solariums, perfect for al fresco dining or unwinding while enjoying stunning sea views. Discover Your Dream Home Don’t miss this unique opportunity to live in one of Estepona’s most prestigious developments. Contact us today to arrange a viewing and experience the perfect blend of luxury, comfort, and Mediterranean charm.
Information
Features
- Elevator/Lift...
- Communal Pool...
- Gated...
- Terrace: 23 Msq....
- Solarium: Yes...
- Parking - Space...
- Number of Parking Spaces...
- Beach: 400 Meters...
- Views: Sea...
- Near Schools...
- Near Commercial Center...
- Near Bus Route...
- Location: Coastal...
- Urbanisation...
- Useable Build Space: 122...
- Air Conditioning: Yes...
- Pre-Installed...
- Storage / Trastero...
- Gym...
- Double Bedrooms: 3...
SIMILAR PROPERTIES
-
3 3 124m² 424m²Luxury villa on the first line of the Golf course It has an elevator on all floors of the villa, terraces overlooking the golf course, sports area, sauna...€ 852.000Ref: N3034V1
-
3 3 224m² 431m²VILLAS WITH SEA VIEWS IN FINESTRAT !!! Luxury villas in Finestrat with spectacular sea views. One step away from Benidorm, and its beaches, leisure, shop...€ 819.900Ref: N3099V











