3 Bedrooms Apartment for sale in Vera
Sale
€ 180.000
Beschrijving
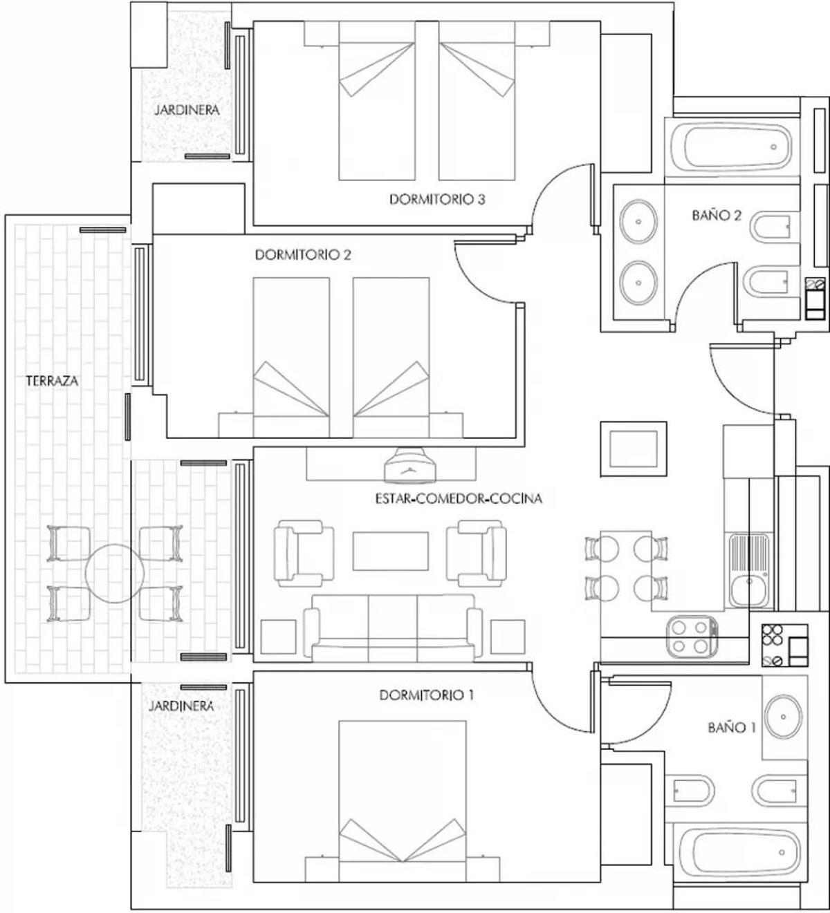
Tourist Licensed Apartments for Investment Near the Beach in Vera Almeria Exclusive Resort Style Development in Puerto Vera Discover a unique opportunity to invest in a fully managed tourist apartment complex located in Puerto Vera, in the sought after area of Puerto Rey in Vera, Almeria. This exclusive development consists of 181 fully regenerated apartments distributed across 7 blocks, designed to offer a perfect combination of lifestyle, comfort and profitability. Situated just 700 meters from Puerto Rey beach and only a short walk to El Playazo de Vera, this location is ideal for enjoying the Mediterranean climate and unspoiled coastal surroundings. Smart Investment with Guaranteed Rental Potential This project is specifically designed for investors seeking a hassle free property with strong rental returns. Each apartment comes with a tourist license and is managed by a professional operator. Owners can enjoy personal use of the property for up to 2 months per year, while the management company handles rentals for the rest of the time, generating income. In addition, this type of property benefits from VAT refund, offering significant financial advantages for buyers. Modern Fully Equipped and Furnished Apartments The development offers 1, 2 and 3 bedroom apartments with 1 or 2 bathrooms, available as ground floor units with large terraces, middle floor apartments or penthouses, some with private solariums. All homes are delivered fully furnished and equipped, including air conditioning, WiFi, and modern kitchens with appliances such as oven, dishwasher, microwave and washing machine. Each property also includes an underground parking space. Resort Style Facilities and Amenities Residents and guests can enjoy a wide range of premium communal facilities designed to create a complete holiday experience. These include outdoor swimming pools, a fully equipped gym, business center, restaurant, mini cinema and a dedicated kids club with gaming area. The development is designed to offer comfort, leisure and relaxation in one place, making it highly attractive for both holidaymakers and investors. Discover Vera and Surroundings Vera is a charming coastal town known for its natural beaches and relaxed lifestyle. The area offers easy access to cultural and natural attractions such as Mojacar 8 km, Garrucha Marina 6 km, Cabo de Gata Natural Park 60 km and the Tabernas Desert 70 km. Golf lovers will appreciate nearby courses such as Desert Springs Golf 8 km, Valle del Este Golf 5 km and Marina Golf Mojacar 7 km. Almeria Airport is approximately 85 km away. A new planned high speed train station will improve significantly the communications in the area and also the value of the properties in this location. A Unique Investment Opportunity on the Costa de Almeria This development combines location, services and profitability, making it an ideal choice for investors seeking a secure and attractive return. Contact us today to receive more information or arrange a visit and secure your property in Vera. 519
Information
Features
- Licensed Tourist Propert...
- Elevator/Lift...
- Communal Pool...
- Gated...
- Terrace: 12 Msq....
- Space...
- Number of Parking Spaces...
- Furnished...
- Beach: 700 Meters...
- Near Schools...
- Near Childrens Parks...
- Near Commercial Center...
- Near Bus Route...
- Location: Coastal...
- Urbanisation...
- Useable Build Space: 85 ...
- Under-Build / Basement...
- Gym...
- Double Bedrooms: 3...
- Games Room...
SIMILAR PROPERTIES
-
3 2 93m² 0m²Modern New Build Apartments in the Center of San Miguel de Salinas Contemporary Living in a Healthy Mediterranean Environment Located in the charming tow...€ 190.000Ref: N9545
-
3 2 74m² 0m²New Build Apartments in Jacarilla, Alicante – Tranquility and Comfort Modern Apartments with Private Parking and Storage Discover this exclusive ne...€ 170.000Ref: N8788






























