3 Bedrooms Penthouse for sale in Casares
Sale
€ 750.000
Beschrijving
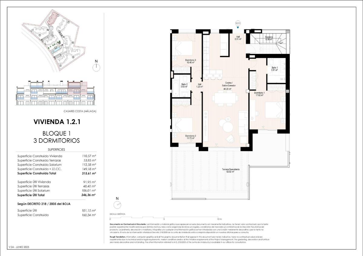
New Build Apartments for Sale in Doña Julia Golf, Casares Costa Exclusive Residential Development in the Heart of the Costa del Sol Discover this exceptional new build development located in the prestigious Doña Julia Golf area of Casares. Perfectly positioned between Estepona, Sotogrande and Marbella, the residence enjoys seamless connectivity to the region’s top destinations. Surrounded by renowned golf courses, it is just 700 meters from some of the most unspoiled beaches on the Costa del Sol and within minutes of exclusive marinas and leisure areas. Modern Homes with Sea Views The complex comprises 99 high-quality apartments with 2 and 3 bedrooms, each designed to maximize natural light and Mediterranean living. Ground floor units feature private gardens, while penthouses boast solariums with spectacular sea views. Every home includes spacious terraces, a private parking space and a storage room, ensuring comfort and practicality. Premium Communal Facilities Enjoy a healthy and active lifestyle with exceptional shared amenities. Landscaped gardens, two outdoor swimming pools for adults and children, a fully equipped gym, calisthenics circuit, coworking area and even an indoor golf simulator are all part of this exclusive complex. For ultimate relaxation, residents can unwind in the sauna and hammam or enjoy the outdoor chill-out area with barbecue. Bicycle parking is also available within the gated premises. Contemporary Interiors and Finishes Each apartment comes with Italian-style kitchens equipped with modern appliances, bathrooms with suspended furniture and double basins in master suites, and sliding shower screens. Unbeatable Location and Excellent Connectivity With everyday conveniences such as supermarkets, pharmacies and restaurants nearby, this development offers a perfect blend of tranquility and accessibility. Distances to key points of interest include: Beach – 0.7 km (15 minutes on foot) La Duquesa Marina – 8 km (10 minutes by car) Estepona town center – 12 km (15 minutes by car) Puerto Banús – 28 km (25 minutes by car) Sotogrande – 26 km (25 minutes by car) Golf courses (Doña Julia, Finca Cortesín, Estepona, Sotogrande) – 5 to 20 minutes by car Gibraltar Airport – 40 km (45 minutes by car) Málaga Airport – 90 km (1 hour 10 minutes by car) Live the Costa del Sol Lifestyle in Casares Casares, a charming Andalusian white village, offers a perfect combination of mountain scenery and pristine Mediterranean beaches. Whether as a permanent home, a holiday retreat or an investment, this development offers unmatched comfort, modern design and privileged surroundings. Contact us today to secure your new home in Casares Costa and start enjoying the Mediterranean lifestyle.
Information
Features
- Elevator/Lift...
- Communal Pool...
- Gated...
- Terrace: 154 Msq....
- Solarium: Yes...
- BBQ...
- Parking - Space...
- Number of Parking Spaces...
- Beach: 700 Meters...
- Views: Sea...
- Near Schools...
- Near Commercial Center...
- Near Bus Route...
- Location: Urbanisation...
- Useable Build Space: 101...
- Storage / Trastero...
- Gym...
- Double Bedrooms: 3...
SIMILAR PROPERTIES
-
3 3 228m² 350m²NEW BUILD RESIDENTIAL COMPLEX NEAR LA SERENA GOLF, LOS ALCAZARES 20 detached villas within a front line golf complex. The villas have 3 bedrooms and 3 ba...€ 685.000Ref: N8262
-
3 3 235m² 10000m²Custom Built New Villas in Pinoso (Alicante): Spacious Homes in Natural Surroundings New Build Villas Tailored to Your Lifestyle in Pinoso Discover a uni...€ 702.000Ref: N9700














