3 Bedrooms Penthouse for sale in Villajoyosa
Sale
€ 730.000
Beschrijving
NEW BUILD COMPLEX IN VILLAYOJOSA New Build residential complex of 42 apartments and penthouses in Villayojosa located few steps from the beach. Luxury properties with 1, 2 and 3-bedrooms designed down to the smallest detail. Just 200 meters from the sea, with spacious terraces are perfect for relaxing and enjoying the sea views. Located in a natural environment, this promotion has a swimming pool, gardens, children’s area, equipped gym and sauna. Ground floor properties with 1 bedroom and 1 bathroom with terraces and private gardens. Apartments with 1 and 2 bedrooms and 1 and 2 bathrooms with large terraces where you have a covered area and an open area. Penthouses with 3 bedrooms and 2 bathrooms with terraces and private solariums. All properties has private parking space. Villajoyosa is a hidden pearl on the Spanish Costa Blanca. This colourful fishing village is located between Benidorm and El Campello, about 30 minutes by car from Alicante airport. In recent years, the idyllic town has become a sought-after location for second-home residents and tourists. Villajoyosa has a lot to offer, from the wide sandy beach to the narrow and colourful streets of the historic town centre. Today, more than thirty thousand people live in Villajoyosa and, above all, the colourful houses offer tons of inspiration for the many artists. Villajoyosa is also known for its delicious Valor chocolate factory museum.
Information
Features
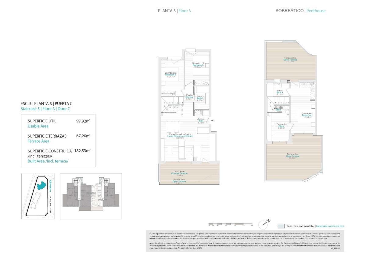
- Elevator/Lift...
- Communal Pool...
- Gated...
- Terrace: 66 Msq....
- Solarium: Yes...
- Parking - Space...
- Number of Parking Spaces...
- Beach: 200 Meters...
- Near Golf / Golf Resort ...
- Views: Sea...
- Near Schools...
- Near Commercial Center...
- Location: Coastal...
- Urbanisation...
- Useable Build Space: 97 ...
- Air Conditioning: Pre-In...
- Gym...
- Double Bedrooms: 3...
SIMILAR PROPERTIES
-
3 2 175m² 186m²New Build Apartments with Sea Views in Selwo, Estepona A unique residential project located next to Selwo Park, in a privileged location surrounded by na...€ 799.000Ref: SP1096
-
3 2 160m² 0m²New Build Beachfront Apartments and Penthouses for Sale in Macenas, Almería Modern Coastal Living in a Gated Resort by the Mediterranean Discover ...€ 672.000Ref: SP1132






















