3 Bedrooms Town House for sale in Mijas
Sale
€ 675.000
Description
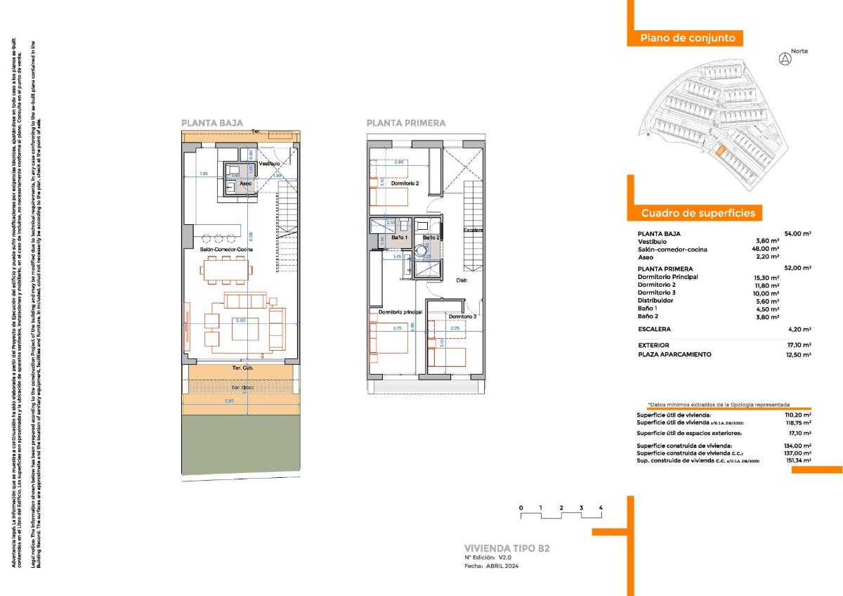
New Build Townhouses and Corner Semi Detached Homes at La Cala de Mijas Exclusive Gated Residential Complex on the Costa del Sol This modern gated residential complex is ideally located in one of the most sought after areas of the Costa del Sol, with excellent connections to the A 7 Costa del Sol motorway and quick access to the AP 7 toll road. The development offers privacy, security and convenience, making it an ideal choice for both permanent living and holiday use. Its strategic location places residents close to Marbella, Puerto Banus and Malaga, while still enjoying a peaceful residential environment near the sea. Modern Homes with Spacious Layouts and Sea Views The project consists of 68 high quality townhouses and corner semi detached homes with 3 or 4 bedrooms. The properties have been carefully designed to offer balanced layouts, open plan living areas and generous outdoor spaces such as terraces, private gardens or solariums. Some homes include a basement level with private parking, storage room or living area, while others offer convenient surface parking. All homes benefit from a south facing orientation, and many enjoy stunning open views towards the Mediterranean Sea. High Quality Finishes and Contemporary Comfort Each home is equipped with premium specifications to ensure comfort and modern living. Kitchens come fully furnished with integrated appliances and a clean, contemporary design. Bathrooms include vanity units, mirrors, shower screens and underfloor heating. The properties also feature a reinforced security entrance door and a complete ducted air conditioning system installed throughout. Selected homes include a private mini pool, allowing you to enjoy the summer months from the comfort of your own home. Resort Style Communal Areas Residents can enjoy an exceptional range of communal facilities designed for relaxation and wellbeing. The development includes landscaped gardens, a large communal swimming pool, gym, sauna, spa and a chill out area, creating a resort like atmosphere ideal for socializing or unwinding year round. Prime Location Close to Beach, Golf and Services The complex is located less than 2 km from the beach and within a 7 minute walk of essential services such as supermarkets, restaurants, shops, health center, leisure facilities and several renowned golf courses. Key Distances to Points of Interest Marbella historic center: 15 km Puerto Banus marina: 20 km Malaga International Airport: 45 km Maria Zambrano train station: 30 km Nearest golf courses: 2 km Your New Home on the Costa del Sol Awaits Discover the perfect combination of modern design, excellent location and high quality living. Contact us today to arrange a viewing and secure your new home near Marbella and the Mediterranean coast.
Information
Features
- Elevator/Lift...
- Communal Pool...
- Garden...
- Gated...
- Terrace: 17 Msq....
- Space - Double Garage...
- Number of Parking Spaces...
- Beach: 2000 Meters...
- Near Golf / Golf Resort ...
- Views: Sea...
- Near Schools...
- Near Commercial Center...
- Location: Coastal...
- Urbanisation...
- Useable Build Space: 118...
- Storage / Trastero...
- Under-Build / Basement...
- Gym...
- Double Bedrooms: 3...
- Toilet: 1...
SIMILAR PROPERTIES
-
3 2 123m² 570m²New Build Villas for Sale at La Manga Club – Luxury Living in a Prestigious Resort Modern, Spacious Villas in a Central Location Discover the stunn...€ 700.000Ref: SP0874
-
3 3 141m² 20m²Modern New Build Townhouses for Sale in Manilva Costa del Sol Contemporary Design with a Focus on Space and Light This exclusive new development in Manil...€ 615.000Ref: SP1127















