3 Bedrooms Villa for sale in Finestrat
Sale
€ 503.000
Beschrijving
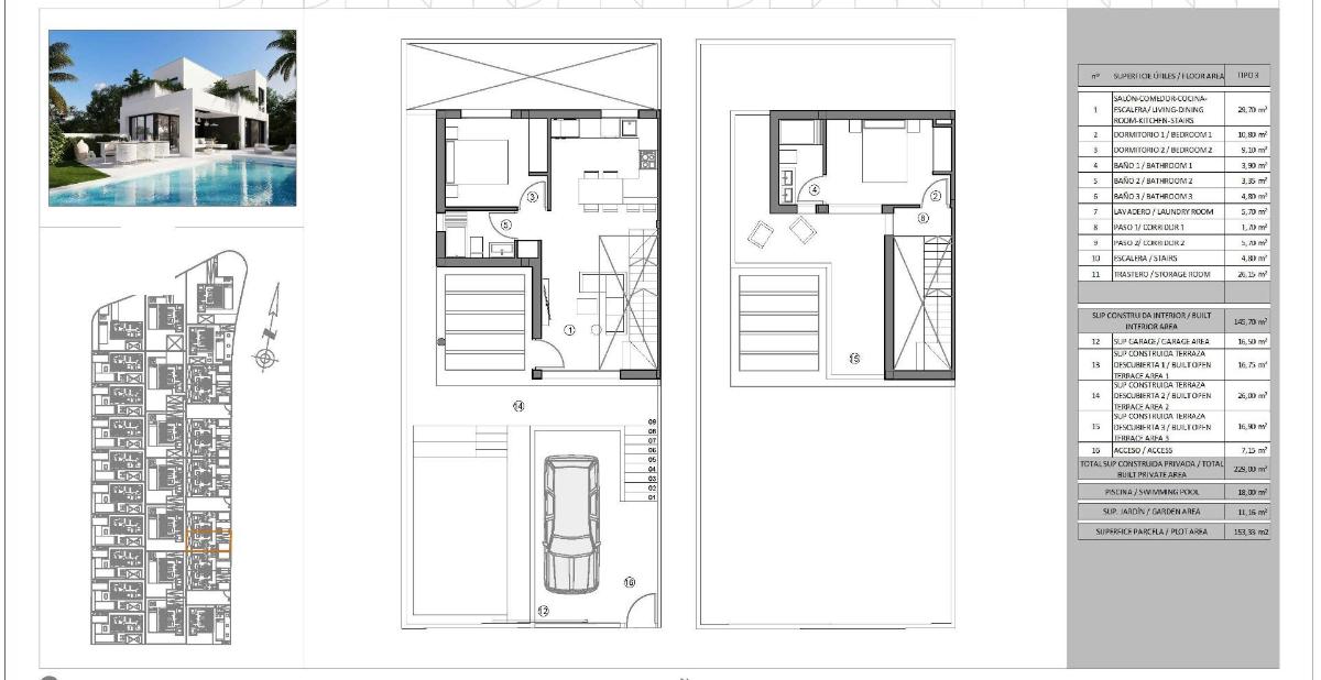
New Villas in Finestrat – Luxury, Nature and Sea Views Exclusive Residential in Sierra Cortina, Benidorm-Finestrat Discover this new luxury residential development in Sierra Cortina, Finestrat, one of the most exclusive areas of the Costa Blanca. This development offers 30 villas of avant-garde design, with options of semi-detached and detached villas, all of them with spectacular sea and mountain views. Located in a peaceful setting, yet close to all amenities, this development is ideal for those seeking privacy, comfort and access to Benidorm’s best beaches and services. Modern Design and Spacious Living The villas have been designed in a contemporary style, optimising natural light and panoramic views. You will be able to choose from various models with options from 2 to 4 bedrooms, and some designs include basement with English patio, allowing the possibility of adding additional bedrooms. Each home features: 2 floors with private terraces with sea views. Private swimming pool and garden for your enjoyment. Garage on the plot, with space for your vehicle. Open concept kitchen integrated into the living room. Fitted wardrobes and storage space. Utility room for convenience. Privileged location on the Costa Blanca This exclusive residential is located in Sierra Cortina, one of the most prestigious areas of the Costa Blanca, surrounded by nature and with access to first class services. Only 3 km from the sea, this development is located next to two golf courses and close to the Terra Mitica theme park and the luxury hotel Asia Gardens. It also has fast connections to the main roads and airports in the region. Distances to Main Points of Interest Benidorm Beaches – 3 km. Villaitana and Sierra Cortina Golf Courses – 2 km. La Marina Shopping Centre – 2 km. Terra Mitica Theme Park – 1.5 km. Alicante Airport – 40 km. Live in an Exclusive Area with All Amenities Finestrat is a charming municipality in the Marina Baixa, located just a few minutes from Benidorm. Its combination of mountain and sea, together with its modern infrastructure, make it an unbeatable location to live or invest. Don’t miss the opportunity to acquire a brand new villa in this privileged location. Contact us today for more information and to arrange a viewing.
Information
Features
- Private Pool...
- Garden...
- Gated...
- Terrace: 60 Msq....
- Parking - Space...
- Number of Parking Spaces...
- Beach: 3000 Meters...
- Views: Sea...
- Near Schools...
- Near Commercial Center...
- Near Bus Route...
- Location: Coastal...
- Mountain...
- Useable Build Space: 125...
- Air Conditioning: Pre-In...
- Under-Build / Basement...
- Double Bedrooms: 3...
- Toilet: 1...
SIMILAR PROPERTIES
-
3 2 129m² 0m²Exclusive New Build Residential Development in La Alcaidesa with Sea and Golf Views Modern homes in a privileged location on the Costa del Sol Discover t...€ 507.000Ref: N9043
-
3 2 215m² 317m²NEW BUILD SEMI-DETACHED VILLAS IN POLOP New Build modern semi-detached villas with several terraces and solarium, totally fenced, with parking area for v...€ 547.690Ref: N8648




















