5 Bedrooms Villa for sale in Mijas
Sale
€ 2.275.000
Description
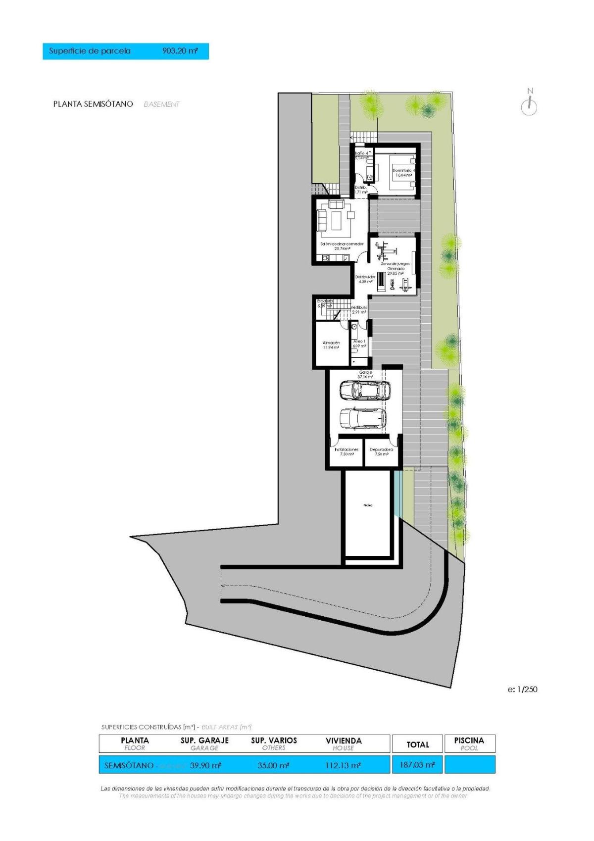
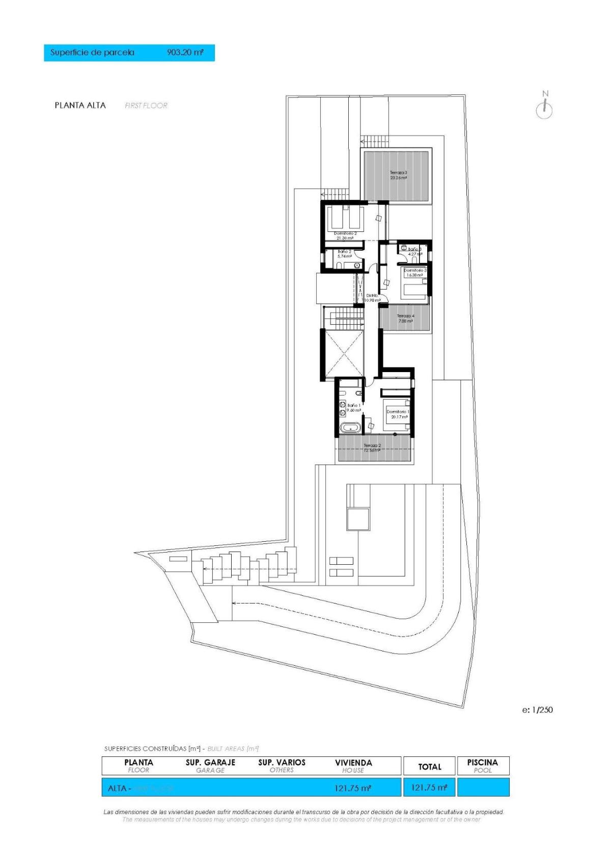
Exclusive New Villas for Sale in Las Farolas, Mijas Costa Prime Location by the Sea on the Costa del Sol Discover this new development of 7 luxury villas located in the prestigious and well-established Las Farolas urbanization, between Fuengirola and La Cala de Mijas. Just 100 meters from the beach, these exceptional homes enjoy partial sea and mountain views and easy access directly from the N-340 (A7) coastal road. The area is known for its tranquility, proximity to the Mediterranean, and excellent connections to Málaga, Marbella, and the airport. Elegant Design and Superior Construction Quality Built by a developer with extensive experience on the Costa del Sol, this project reflects the highest standards of quality, safety, and modern design. Each villa combines Mediterranean charm with contemporary architecture to offer a bright, functional, and elegant living space. Spacious Layout Over Three Levels Each villa is distributed over three floors, offering generous interior and exterior spaces: Basement: garage for two cars, technical rooms, storage, an additional bedroom with bathroom, and multipurpose areas ideal for a gym, home cinema, or games room. Main floor: large living and dining area with kitchen, laundry room, guest toilet, and one bedroom with ensuite bathroom. The living space opens onto an expansive terrace with a private pool and garden. Upper floor: additional bedrooms, including the master suite with freestanding bathtub and access to private terraces, some with sea views. Luxury Finishes and Modern Comfort Every villa is equipped with premium materials and the latest technology, including: Fully fitted Bosch kitchen appliances Motorized shutters in all bedrooms Underfloor heating via aerothermal system and air conditioning by ducts. Smart home automation to control blinds, lighting, and climate Landscaped gardens with automatic irrigation system Distances to main points of interest: Beach: 100 m La Cala de Mijas: 3 km Fuengirola center: 6 km Marbella: 22 km Málaga International Airport: 30 km Nearest golf course (Chaparral Golf): 2 km Málaga city center: 40 km A Lifestyle of Comfort and Prestige These villas in Las Farolas offer an unmatched combination of privacy, luxury, and proximity to the sea, making them ideal as a permanent residence, vacation home, or investment on the Costa del Sol. Contact us today to arrange a viewing and discover your dream villa in Mijas Costa.
Information
Features
- Private Pool...
- Garden...
- Gated...
- Terrace: 147 Msq....
- Parking - Space...
- Number of Parking Spaces...
- Beach: 100 Meters...
- Views: Sea...
- Near Schools...
- Near Commercial Center...
- Location: Coastal...
- Useable Build Space: 393...
- Storage / Trastero...
- Under-Build / Basement...
- Gym...
- Double Bedrooms: 5...
- Laundry Room...

































